Eventos Corporativos
Eventos Sociales




















EVENTOS INOLVIDABLES
ORGANIZA TU EVENTO CON NOSOTROS
En Inkari Suites, contamos con las salas Aklla y Kusilla, espacios modernos y funcionales con capacidad de hasta 150 personas, en formato auditorio. Ideales para eventos corporativos, conferencias, capacitaciones o celebraciones especiales, nuestras salas están equipadas para ofrecer comodidad, conectividad y un ambiente profesional.
Además, disponemos de servicios complementarios como catering, apoyo técnico y asesoría personalizada para asegurar que cada detalle esté cubierto y tu evento sea todo un éxito.
SALÓN AKLLA
Ecran.
140 m²
01 Proyector multimedia.
01 Puntero láser remoto.
02 Micrófonos inalámbricos.
Equipos de sonido.
01 Equipo de cómputo (Laptop).
01 Podium.
01 Pizarra acrílica, plumón y mota.
Jarras de agua y caramelos.
















SALÓN KUSILLA
Ecran
140 m²
01 Proyector multimedia.
01 Puntero láser remoto.
02 Micrófonos inalámbricos.
Equipos de sonido.
01 Equipo de cómputo (Laptop).
01 Podium.
01 Pizarra acrílica, plumón y mota.
Jarras de agua y caramelos.
EVENTOS A TU ESTILO CON INKARI SUITES
Reuniones y Conferencias
Bodas
Celebraciones
Entretenimento y más
Reuniones y Conferencias
Bodas
Celebraciones
Entretenimento y más
ARMADOS PARA EVENTOS
ARMADO U
AFORO: 40 PERSONAS
AUDITORIO
AFORO: 84 PERSONAS
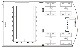
ARMADO T
AFORO: 40 PERSONAS
IMPERIAL
AFORO: 40 PERSONAS
BANQUETE
BANQUETE
AULA
AFORO: 80 PERSONAS
ARMADO U
AFORO: 40 PERSONAS
AUDITORIO
AFORO: 84 PERSONAS
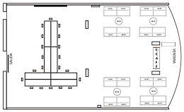
ARMADO T
AFORO: 40 PERSONAS
IMPERIAL
AFORO: 40 PERSONAS
BANQUETE
BANQUETE